Descrição do Projeto

O apartamento Paraguaçu é um projeto com características super marcantes que evidenciam a personalidade da sua proprietária, uma jovem artista plástica que ama cores e texturas. Foi um projeto totalmente colaborativo entre a equipe de arquitetura e sua proprietária que escolheu um por um seus acabamentos e chegou até mesmo a desenhar a estampa dos ladrilhos que compõem a área da cozinha e mesa de jantar.

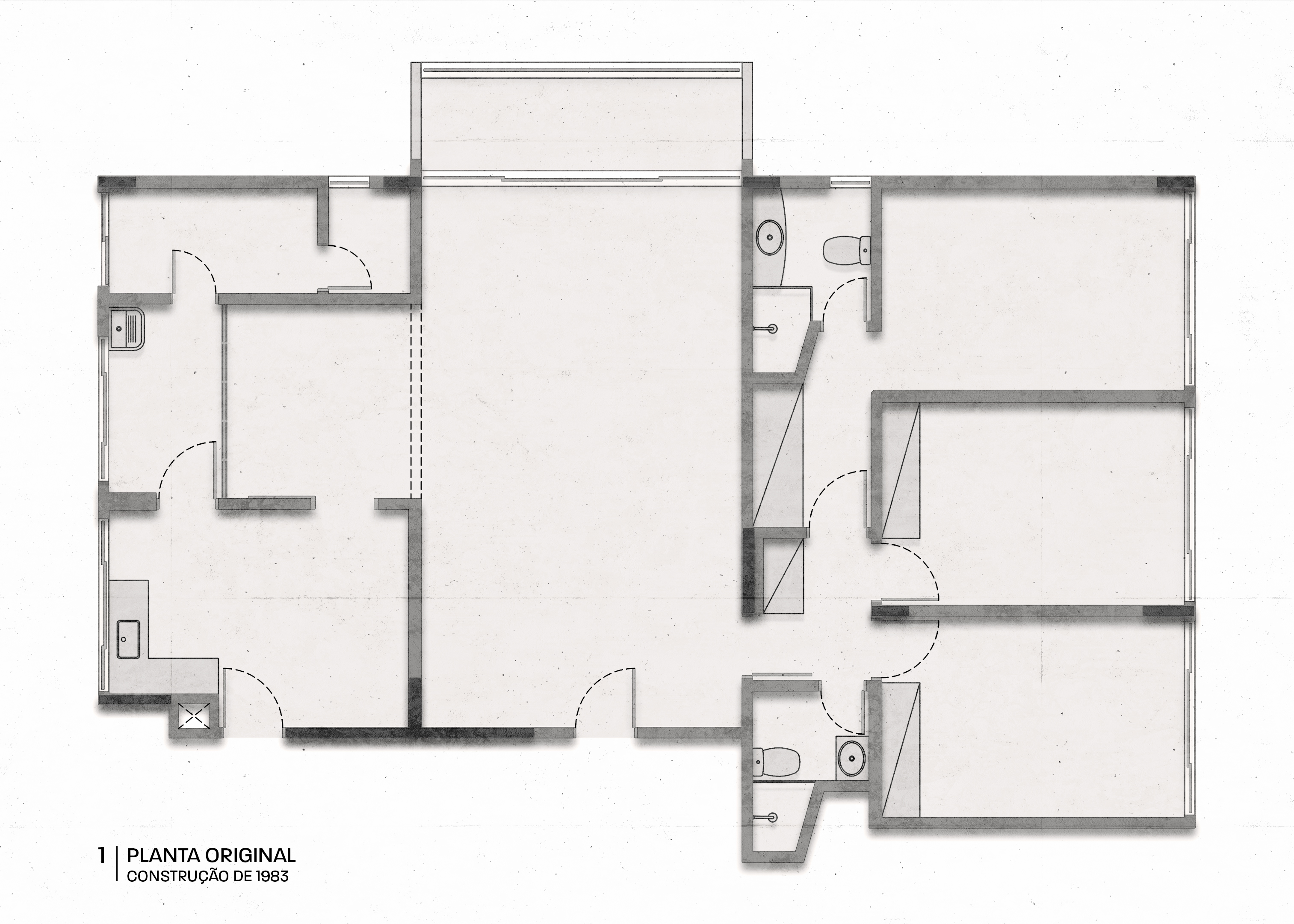
No inícío encontramos um apartamento da década de 1980 totalmente original, com cozinha fechada, lavanderia com o antigo dormítório e banho de serviço, e revestimentos da época. E também com características super positivas das construções antigas: janelas amplas em todos os ambientes, dormitórios enormes, uma sala com uma super iluminação natural e uma varanda que realmente se projeta em balanço para fora da edificação.

Nosso objetivo foi valorizar os pontos fortes de sua composição abrindo a cozinha para a sala e ampliando ainda mais a area social do apartamento. Trouxemos cores marcantes para cada um dos ambientes e investimos no uso de materiais da época, como o ladrilho hidraulico na cozinha, o tijolo de vidro da divisão entre lavanderia e sala de jantar e também o granilite na saída da sala para a varanda.

O concreto da estrutura do edifício também foi evidenciado na viga aparente entre cozinha e sala, no rack da televisão e no banco do quarto de casal, ambos feitos durante a obra. Os banheiros foram todos remodelados, ganharam uma mistura de cores vibrantes como o verde e rosa no banho casal, azul e amarelo no banho filho e vermelho e branco no banho social. Dormitórios mantiveram a linguagem do piso de madeira maciço e ganharam nova marcenaria.

Como resultado temos um apartamento fora do óbivo na escolha de cores e revestimentos, com personalidade forte e marcante, assim como sua proprietária.

Ficha Técnica

Projeto de arquitetura:

Flávia Garofalo Cavalcanti e Maria Eduarda Koga

Gerenciamento de obra:

Flávia Cavalcanti

Execução:

Galvão e Podda

Dados Gerais

Área do apartamento: 130m²

Ano do Projeto: 2025

Ano da obra: 2026

EstúdioIBÁ Arquitetura © 2026. Todos os direitos reservados. Desenvolvido por DonnaPixel.