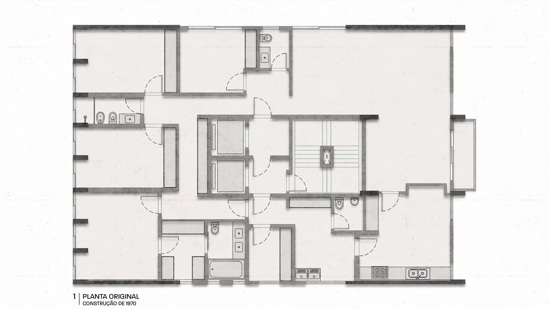
Descrição do Projeto

Um exemplo da arquitetura moderna paulista, o Apto Horizonte, no bairro do Pacaembu em São Paulo, tem uma planta generosa, com amplas janelas e vistas que vão do topo da Av. Paulista ao estádio do Pacaembu. Com projeto original do arquiteto Pedro Paulo de Melo Saraiva, o edifício da década de 1970 apresenta a estrutura de concreto aparente como elemento principal da sua fachada.

O ponto de partida para o projeto de reforma do Apartamento Horizonte foi trazer a modernidade da sua fachada para dentro da unidade residencial, trazendo o concreto para peças principais na composição do novo layout projetado para um jovem casal. Na cozinha temos uma ilha de concreto suspensa por cabos que articula toda a circulação  de preparar alimentos e receber amigos. Na sala a lareira e o banco, também em concreto, trazem uma atmosfera de intimidade para a amplitude da área social do apartamento. A marcenaria vem complementando os elementos de concreto, hora de forma mais neutra com tons de cinza e branco, e hora de forma mais presente com a sucupira em desenhos marcados como o buffet suspenso com portas frontais ripadas e o painel, também ripado, logo no hall de entrada para esconder o lavabo.

Elementos clássicos da modernidade paulista, como concreto aparente, em conjunto com a contemporaneidade do desenho de marcenaria para um jovem casal com planos de aumentar a família resumem o apto Horizonte!

Ficha Técnica

Projeto de arquitetura:

Flávia Garofalo Cavalcanti

Execução:

Reforme Sempre

Fotografia:

Cris Farhat

Dados Gerais

Área do apartamento: 220m²

Ano do Projeto: 2019

Ano da obra:2020

Localização: São Paulo – SP

EstúdioIBÁ Arquitetura © 2026. Todos os direitos reservados. Desenvolvido por DonnaPixel.